Eladó családi ház Tass 65 000 000 Ft

Leírás

ÚJ ÉPÍTÉSŰ CSALÁDI HÁZ ELADÓ TASSON – NYUGODT, CSENDES ZSÁKUTCÁBAN!

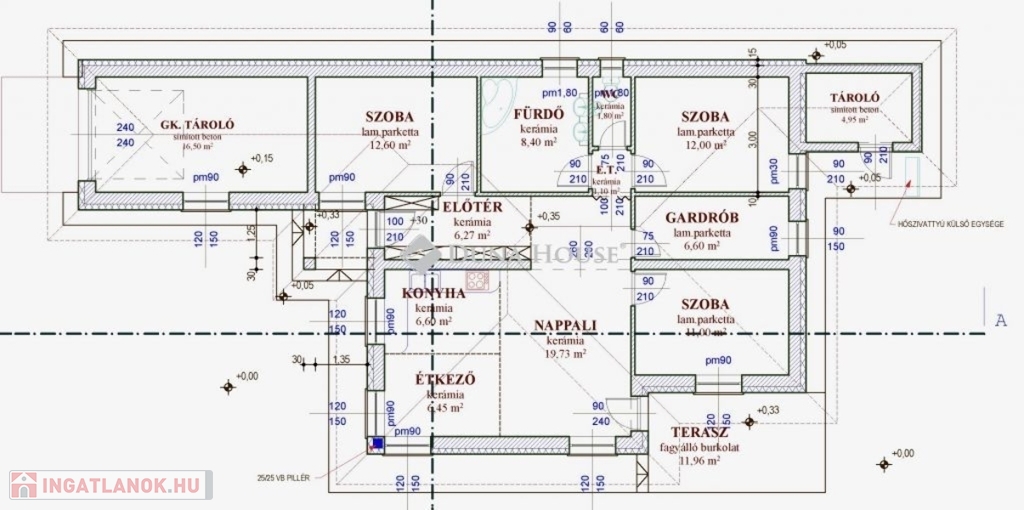
Tass új parcellázású részén, átmenő forgalomtól mentes, csendes zsákutcában kínálunk megvételre egy nappali + 3 szobás, modern családi házat!

Főbb jellemzők:

Nettó 94 m² lakótér

16 m² garázs

594 m² összközműves telek

Praktikus elrendezés: nappali + 3 külön nyíló szoba

Kimagasló műszaki tartalom:

Hőszivattyús rendszer + padlófűtés

3 rétegű, korszerű nyílászárók

Tégla építés + 15 cm szigetelés

Midea inverteres klíma

Riasztó, klíma, elektromos kapu előkészítés

Egyedi igényekre szabható:

Választható burkolatok

Szaniterek

Külső-belső színek

⏳ Állapot: 60%-os készültség

Kulcsrakész ár: 65.000.000 Ft

Ne maradjon le róla!
További információért és megtekintésért keressen bizalommal!

Családi ház részletei

Ár: 65 000 000 Ft
Méret: 147 négyzetméter
Azonosító: 11607314
Irodai azonosító: HZ045848-5179142
Telek: 594 négyzetméter
Ingatlan állapota: Épülő
Jelleg: családi ház
Építőanyag: Tégla
Fűtés jellege: Villany
Fűtés módja: Hőszivattyú
Kor: Új építésű
Szintek száma: Földszintes
Egész szobák: 4

Térkép