Az értékesítő:
Kovács Olimpia
+36 30 649 5940

Eladó családi ház Tass, 65 000 000 Ft, 147 négyzetméter

65 000 000 Ft
családi ház, 147 négyzetméter
Építőanyag:
Tégla
Egész szobák:
4
Fűtés módja:
Hőszivattyú
Ingatlan állapota:
Épülő
Azonosító:
11607314
Értékesítés típusa:
eladó
Ingatlan típusa:
családi ház
Jelleg:
Családi ház
Település:
Tass
Alapterület:
147
Telekterület:
594
Ár:
65 000 000 Ft
Szintek száma:
Földszintes
Fűtés jellege:
Villany
Kor:
Új építésű
Erkély:
Van
Klíma:
Van
Telekterület típusa:
négyzetméter
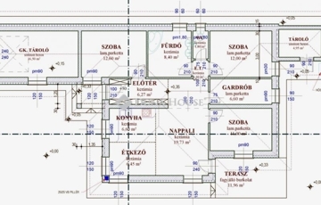
ÚJ ÉPÍTÉSŰ CSALÁDI HÁZ ELADÓ TASSON – NYUGODT, CSENDES ZSÁKUTCÁBAN! Tass új parcellázású részén, átmenő forgalomtól mentes, csendes zsákutcában kínálunk megvételre egy nappali + 3 szobás, modern családi házat! Főbb jellemzők: Nettó 94 m² lakótér 16 m² garázs 594 m² összközműves telek Praktikus elrendezés: nappali + 3 külön nyíló szoba Kimagasló műszaki tartalom: Hőszivattyús rendszer + padlófűtés 3 rétegű, korszerű nyílászárók Tégla építés + 15 cm szigetelés Midea inverteres klíma Riasztó, klíma, elektromos kapu előkészítés Egyedi igényekre szabható: Választható burkolatok Szaniterek Külső-belső színek ⏳ Állapot: 60%-os készültség Kulcsrakész ár: 65.000.000 Ft Ne maradjon le róla! További információért és megtekintésért keressen bizalommal!
https://ingatlanok.hu/elado/haz/tass/65-millio-ft;147-negyzetmeter;4-szoba;villany-futes/11607314