Az értékesítő:
Ignát Arnold
+36 20 290 0676

Eladó családi ház Gödöllő, 120 000 000 Ft, 110 négyzetméter

120 000 000 Ft
családi ház, 110 négyzetméter
Építőanyag:
Tégla
Egész szobák:
4
Fűtés módja:
Gáz
Ingatlan állapota:
Épülő
Azonosító:
11578666
Értékesítés típusa:
eladó
Ingatlan típusa:
családi ház
Jelleg:
Családi ház
Település:
Gödöllő
Alapterület:
110
Telekterület:
737
Ár:
120 000 000 Ft
Szintek száma:
Földszintes
Fűtés jellege:
Cirkó
Kor:
Új építésű
Telekterület típusa:
négyzetméter
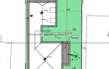
Új építésű ikerház eladó Gödöllőn — modern kialakítás, kiváló helyszín, 2025-ös átadás Gödöllő belvárosától néhány perc sétára, rendezett, aszfaltozott utcában kínálunk eladásra egy 2025-ben megépülő, modern ikerházat, saját lekerített 300 m²-es telek­résszel. Az ingatlan tervezésekor a praktikus elrendezés, az energiahatékonyság és a kényelmes, családbarát térkialakítás kapott hangsúlyt. A földszintes kialakítás mellett igény szerint belső kétszintes változatban is megvalósítható, így a leendő tulajdonos saját igényeire szabhatja az otthonát. Főbb jellemzők: - Alapterület: 78 m² + 21 m² terasz - Saját, elkerített telekrész: 300 m² - Amerikai konyhás nappali - 3 hálószoba - Fürdőszoba + külön WC - Gardrób és háztartási helyiség - Nagy méretű nyitott terasz - Udvari parkolás Műszaki felszereltség: - 30 cm tégla falazat + 12 cm grafitos szigetelés - Bramac beton cseréptető - Háromrétegű thermo üvegezésű ablakok - Kondenzációs gázkazán - Padlófűtés - 2 db inverteres klíma - Laminált padló a lakóhelyiségekben - Kerámia burkolat vizes helyiségekben Az ingatlan műszaki tartalma modern, energia­takarékos, hosszú távon is értékálló megoldásokat biztosít. Helyiséglista: - Előtér: 10,8 m² - Amerikai konyhás nappali: 35,7 m² - Szobák: 12 m², 12,39 m², 10,26 m² - Fürdő: 6,48 m² - WC: 1,76 m² - Gardrób: 9,14 m² - Háztartási helyiség: 7,76 m² - Közlekedő: 1,21 m² - Terasz: 21 m² Elhelyezkedés, környezet: - Csendes, rendezett utca - HÉV- és buszmegálló közelében - Óvoda, iskola néhány perc - Alsó park futókörrel és kültéri edzőparkkal a közelben - Belváros 8 perc séta — üzletek, cukrászdák, piac, szolgáltatások A lokáció kiváló, családbarát, könnyen elérhető környezet, teljes infrastruktúrával. Ez az új építésű otthon ideális választás azoknak, akik: - modern, praktikus, tágas új építésű házat keresnek - rendezett környezetben élnének - szeretnék saját igényeikre szabni új otthonukat - előnyben részesítik a kis rezsit és energiahatékony megoldásokat Az ingatlan rugalmas feltételekkel megtekinthető és lefoglalható. Érdeklődés esetén szívesen állok rendelkezésre — egyeztessünk időpontot és beszéljünk a részletekről.
https://ingatlanok.hu/elado/haz/godollo/120-millio-ft;110-negyzetmeter;4-szoba;cirko-futes/11578666