Az értékesítő:
Kollát Renáta
+36 70 299 0153

Eladó családi ház Dánszentmiklós, 56 900 000 Ft, 66 négyzetméter

56 900 000 Ft
családi ház, 66 négyzetméter
Építőanyag:
Tégla
Egész szobák:
4
Fűtés módja:
Hőszivattyú
Ingatlan állapota:
Épülő
Azonosító:
11572349
Értékesítés típusa:
eladó
Ingatlan típusa:
családi ház
Jelleg:
Ikerház
Település:
Dánszentmiklós
Alapterület:
66
Telekterület:
450
Ár:
56 900 000 Ft
Szintek száma:
Földszintes
Fűtés jellege:
Villany
Kor:
Új építésű
Erkély:
Van
Telekterület típusa:
négyzetméter
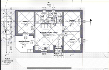
ELADÓ ÚJ ÉPÍTÉSŰ 4 szobás IKERHÁZ DÁNSZENTMIKLÓSON! KÖZÖS FAL NEM ÉRINTKEZIK, FEDETT GÉPKOCSITÁROLÓ A KETTŐ LAKÁS KÖZÖTT. Kiváló elosztású, prémium minőségben épülő ingatlanok. Fűtött alapterület: 66.79 m2 fedett gépkocsitároló: 17,10 m2 nyitott terasz:9.43 m2 telek területe : 450 m2 Választható: hidegburkolat 9500 Ft / m2 melegburkolat: 7500 Ft / m2 szaniterek 350.000 Ft-ig, bejárati ajtó 170.000 Ft-ig, belső ajtók br: 95.000Ft ( Aranyablak dekorfóliás) Fűtés: hőszivattyú padlófűtés mindenhol ( Midea vagy Riello 10 kw) meleg vizet Ariston okosbojler adja, 30-as Porotherm vagy Leier tégla, válaszfal 10-es Leier, 15 cm-es eps szigetelés Műszaki tartalom a helyszínen! Nézzük meg együtt, keressen bizalommal. Közelben: lskola, Óvoda, Coop abc, buszmegálló. Albertirsa autóval 5 perc, 405-ös főút 3 percre,
https://ingatlanok.hu/elado/haz/danszentmiklos/57-millio-ft;66-negyzetmeter;4-szoba;villany-futes/11572349