Eladó lakás Albertirsa 55 000 000 Ft

Leírás

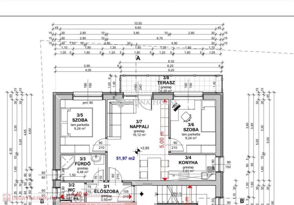
Eladó új építésű, kiváló elosztású lakás Albertirsa központjában, csendes utcában.

JÖJJÖN EL NÉZZÜK MEGY EGYÜTT , HAMAR ÚJ TULAJDONOSÁRA TALÁL.


Elosztása:
- 2 hálószoba
- Nappali + konyha
- Fürdőszoba és külön WC
- Előszoba
- Terasz 6,20 m2

Tartozékok:
- Saját parkolóhely
- Közös tároló

Az ingatlan 2025-ben épült, frekventál helyen található.

Minőségi burkolatok, ajtók és szaniterek.
Modern hőszivattyús fűtés-hűtés.
Elektromos redőny is a kényelmet szolgálja.

Közelben iskola, óvoda, bevásárlási lehetőségek.
Budapest 35 perc távolságra autóval.

Ideális választás családoknak, akik nyugodt, mégis jól megközelíthető otthont keresnek.
Az ingatlan azonnal költözhető!

Érdeklődés és megtekintés ügyében keressen bizalommal!

Lakás részletei

Ár: 55 000 000 Ft
Méret: 52 négyzetméter
Azonosító: 11587610
Irodai azonosító: LK090634-5109404
Emelet: 1. emelet
Építőanyag: Tégla
Fűtés jellege: Hőszivattyú
Ingatlan állapota: Épülő
Építési év: Új építésű
Egész szobák: 3

Egyéb jellemzők

  • Erkély
  • Kocsibeálló

Térkép