Eladó családi ház Monor 68 100 000 Ft

Leírás

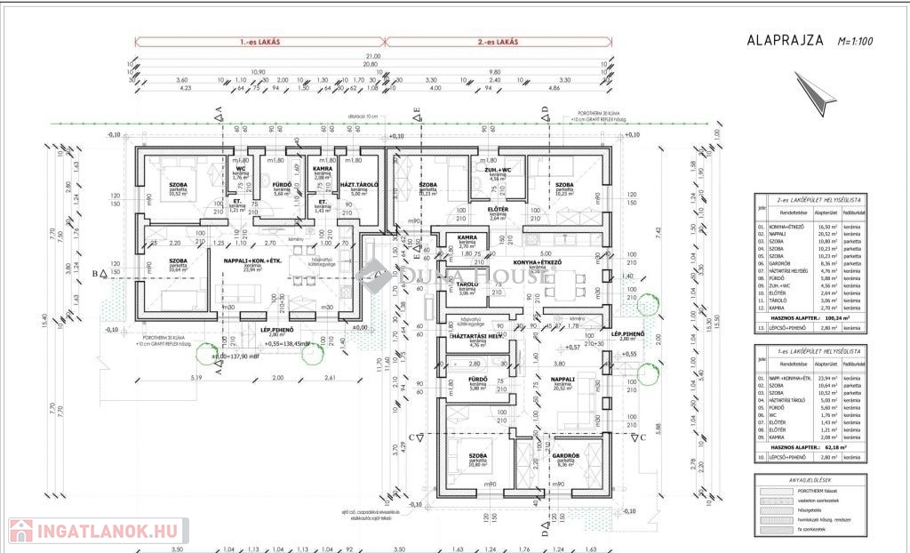
Eladó Monoron 3 lakásos ikerház 62 m2 nagyságú lakása!Budapesttől 15 perces autóútra elhelyezkedő gyorsan fejlődő kisváros kertvárosi részén található újépítésű 62 m2 nagyságú lakás eladó!Sarki telken helyezkedik el, külön bejárattal!A lakások háztartási helyiséggel kapcsolódnak az udvar elkerített. teljesen különálló.Monor új parcellás részén, gyönyörű új lakások közt épült ingatlan, közelben bölcsőde és óvoda található.Magas műszaki tartalommal, hőszivattyús fűtéssel, melegvíz ellátása is erről megoldott.B 30-as téglából. cserép fedéssel, beton alapon, műanyag nyílászárókkal.Burkolatok 5000 ft/m2 értékben választható.Főbb jellemzők:Prémium kivitelezés, magas műszaki tartalom30 cm Porotherm + 15 cm grafitos hőszigetelés3 rétegű nyílászárók, monolit vasbeton födémPadlófűtés + hőszivattyúVárható átadás: 2026 májusAlacsony fenntartás, energiatakarékos megoldások

Családi ház részletei

Ár: 68 100 000 Ft
Méret: 62 négyzetméter
Azonosító: 11571542
Irodai azonosító: HZ051471-5058769
Telek: 350 négyzetméter
Ingatlan állapota: Épülő
Jelleg: ikerház
Építőanyag: Tégla
Fűtés jellege: Villany
Fűtés módja: Hőszivattyú
Kor: Új építésű
Szintek száma: Földszintes
Egész szobák: 3

Térkép