Eladó családi ház Monorierdő 99 900 000 Ft

Leírás

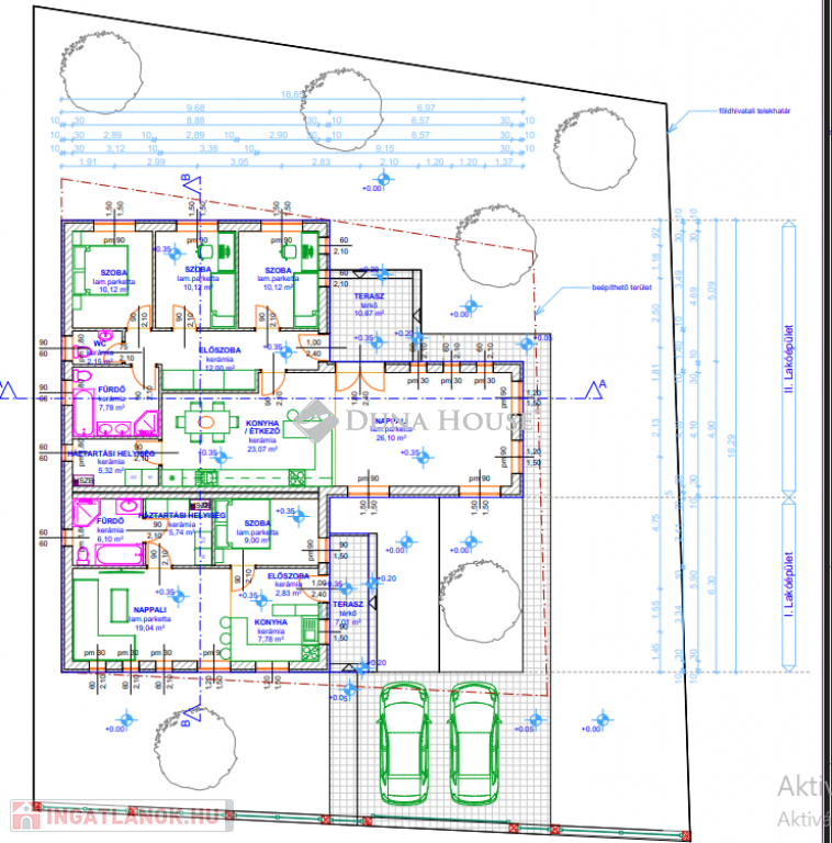
Új építésű, tágas családi otthon saját kerttel Monorierdőn prémium kivitelezésMonorierdő nyugodt, rendezett környezetében kínálunk megvételre egy 106,58 m²-es, külön bejáratú, modern kialakítású lakást, amelyhez kb. 370 m² saját, leválasztott kert tartozik.Az ingatlan megbízható, referenciákkal rendelkező kivitelezőtől készül, magas műszaki tartalommal és korszerű megoldásokkal, melyek hosszú távon kényelmet és alacsony fenntartási költségeket biztosítanak.Műszaki tartalom és felszereltség: vasalt beton alapozás, ytong falazat 10 cm hőszigeteléssel új, szeglemezes tetőszerkezet fekete betoncseréppel 30 cm cellulóz födémszigetelés 3 rétegű, bukó-nyíló műanyag nyílászárók hőszivattyús fűtés, teljes padlófűtéssel 3 fázis + H tarifa kiépítve igényes homlokzati és lábazati szigetelés (XPS) választható burkolatok és beltéri ajtók megadott értékigA lakás belső kialakítása modern és letisztult, a burkolatok, szaniterek és ajtók egyéni igény szerint választhatók, így valóban személyre szabható otthon hozható létre.Az udvarban viacolor burkolatú autóbeálló és járda készül, a kert rendezett állapotban kerül átadásra, ideális pihenésre vagy családi programokra.Az ingatlan egy 650 m²-es telken helyezkedik el használati megosztással, és akár több generáció számára is ideális megoldást kínál, mivel a mellette lévő kisebb lakással együtt is megvásárolható.
Az építkezés elkezdődött , októberi átadással akár költözhető is !
Per-, teher- és igénymentes, teljes körűen hitelezhető.Kiváló elhelyezkedés: Budapest gyorsan elérhető, mégis csendes, élhető környezet.Modern technológia, tágas élettér és saját kert tökéletes családi otthon.

Családi ház részletei

Ár: 99 900 000 Ft
Méret: 106 négyzetméter
Azonosító: 11613310
Irodai azonosító: HZ041035-5202225
Cím: 106 nm-es ház eladó Monorierdő
Telek: 672 négyzetméter
Ingatlan állapota: Épülő
Jelleg: ikerház
Építőanyag: Szilikát
Fűtés jellege: Villany
Fűtés módja: Hőszivattyú
Komfort fokozat: Összkomfort
Kor: Új építésű
Szintek száma: Földszintes
Egész szobák: 4

Egyéb jellemzők

  • Garázs

Térkép