Eladó családi ház Ceglédbercel 99 990 000 Ft

Leírás

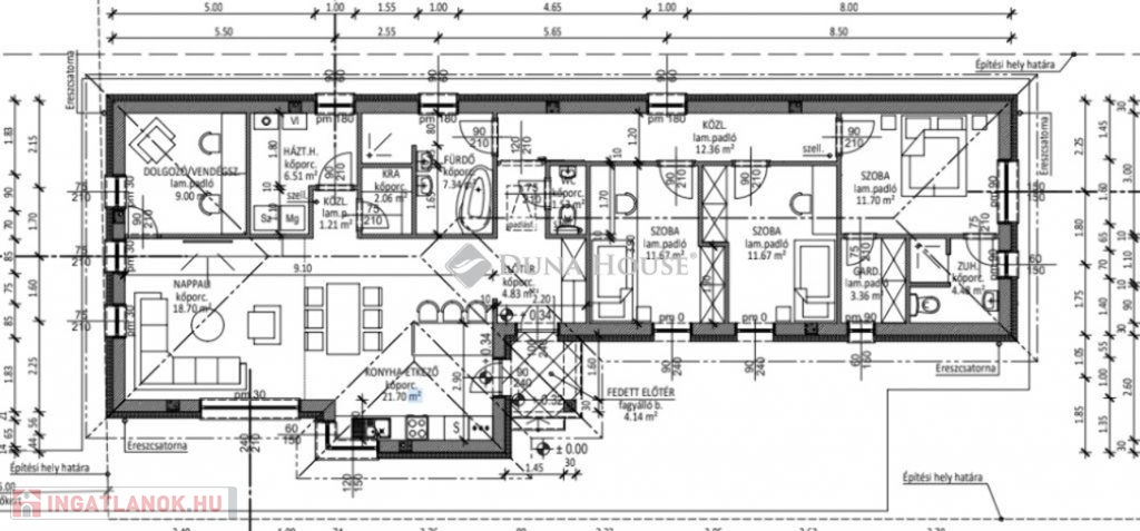
ÚJ ÉPÍTÉSŰ, KORSZERŰ CSALÁDI HÁZ Ceglédbercelen KULCSRAKÉSZ ÁTADÁSSALCeglédbercel nyugodt részén, az Iskola utcában eladó egy 128 m²-es, nappali + 4 szobás, modern kialakítású családi ház 1122 m²-es telken. A telek ára a vételár részét képezi.Az ingatlan ideális választás azok számára, akik új építésű, energiahatékony, hosszú távon is gazdaságosan fenntartható otthont keresnek, kompromisszumok nélkül.Az ár kulcsrakész állapotban értendő, terasszal, konyhabútor és lámpatestek nélkül.Kiemelt előnyök:Előfinanszírozási lehetőség: fizetés kizárólag az elkészült kivitelezési szakaszok utánÁrgancia és kötbérvállalás a kivitelezőtőlModern, gázmentes, energiahatékony rendszer alacsony rezsivelTágas 1122 m²-es telek, számos kertépítési lehetőséggelPraktikus elrendezés: jól szeparált nappali és négy külön nyíló szobaSaját ízlésre szabható belső burkolatok és szaniterekFőbb műszaki jellemzők:Wienerberger Porotherm 30 N+F falazat, 15 cm homlokzati szigetelés, Leier Toscana tetőcserép választható színben.Háromrétegű, prémium nyílászárók antracit külső színnel, alumínium redőnyökkel.Bosch 3400 levegő-víz hőszivattyú vizes padlófűtéssel a teljes házban.Hidegburkolat 6.500 Ft/m²-ig, melegburkolat 6.000 Ft/m²-ig, szaniterek 460.000 Ft értékhatárig.Közművek:Gáz: nincsVillany: ingatlanbanCsatorna: ingatlanbanVíz: ingatlanban

Referencia szám: HZ065695

Családi ház részletei

Ár: 99 990 000 Ft
Méret: 128 négyzetméter
Azonosító: 11587429
Irodai azonosító: HZ065695-5109035
Telek: 1122 négyzetméter
Ingatlan állapota: Épülő
Jelleg: családi ház
Építőanyag: Tégla
Fűtés jellege: Villany
Fűtés módja: Hőszivattyú
Kor: Új építésű
Szintek száma: Földszintes
Egész szobák: 5

Térkép