Eladó családi ház Cegléd 54 800 000 Ft

Leírás

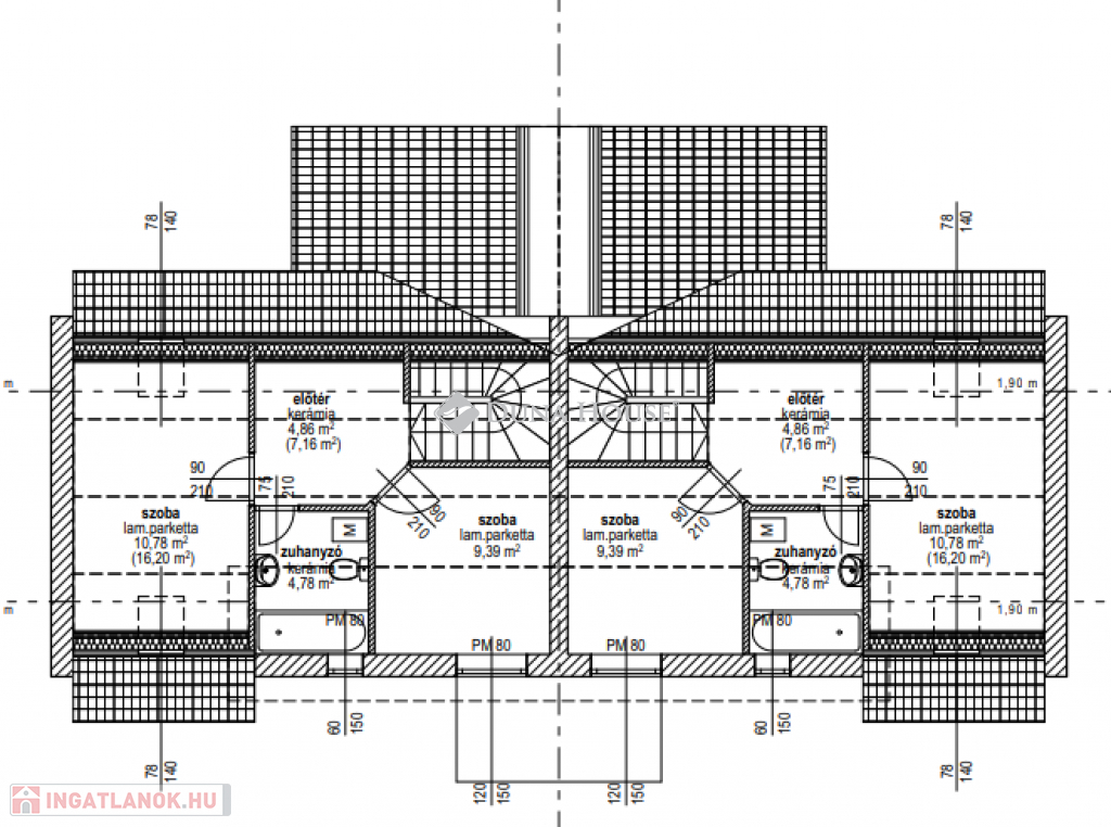
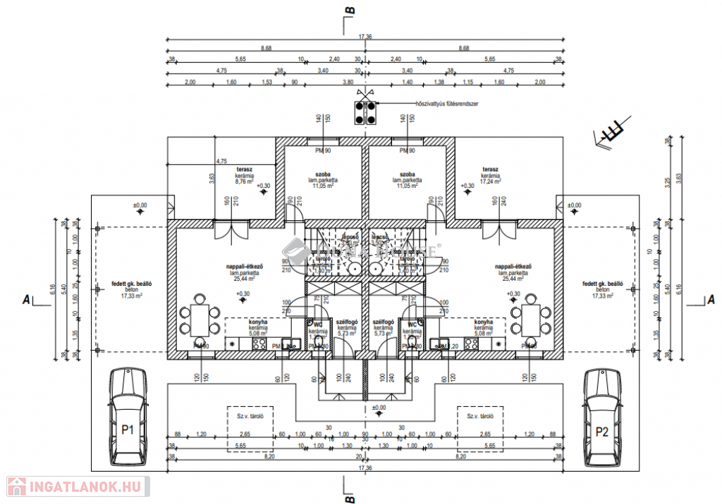
Megvételre kínálunk Cegléden egy 83,3 m2-es újépítésű, önálló-saját kertrésszel rendelkező ikerházfelet.Az épület beton alapra, VIABLOKK téglából, 3 rétegű műanyag nyílászárókkal, beton födémmel, fa tetőszerkezettel és cserépfedéssel épül.Az épület fűtését hőszivattyús rendszer biztosítja, padlófűtésen keresztül.Helyiségeket tekintve kialakításra kerül a(z)földszinten: teraszkapcsolatos amerikai-konyhás nappali, egy hálószoba, előtér, WC, és egy tároló a lépcső alatt.emeleten: 2 darab hálószoba, előtér, fürdő WC-vel.Hideg/meleg burkolatok 6.000 HUF/m2-ig,beltéri ajtók 70.000 HUF/darab-ig,belső falszínek jelenleg még választhatók.A telek mérete kb. 458 m2, melyen ehhez a lakáshoz, egy 17,33 m2-es fedett autóbeálló is létesítésre kerül.Várható átadás időpontja: 2025.12.A KIVITELEZŐ A KÖRNYÉKEN SZÁMOS REFERENCIA MUNKÁVAL RENDELKEZIK, MELYEKET SZÍVESEN BEMUTATUNK AZ ÉRDEKLŐDŐKNEK!Ajánlatom megfelelne az elvárásainak, de nem rendelkezik a kiválasztott ingatlan teljes vételárával?A Credipass munkatársai kötelezettség nélkül állnak rendelkezésére.Hiteltanácsadónk DÍJMENTES. Hétvégén is várom megtisztelő hívását!

Családi ház részletei

Ár: 54 800 000 Ft
Méret: 83 négyzetméter
Azonosító: 11565817
Irodai azonosító: HZ052140-5037155
Telek: 458 négyzetméter
Ingatlan állapota: Épülő
Jelleg: ikerház
Építőanyag: Tégla
Fűtés jellege: Villany
Fűtés módja: Hőszivattyú
Kor: Új építésű
Szintek száma: Földszintes
Egész szobák: 4

Térkép